À Marseille 10ᵉ, dans le quartier résidentiel de Saint-Tronc, découvrez ce superbe T5 en duplex niché au sein de la résidence neuve et sécurisée Seconde Nature. Vous profiterez d’un cadre calme et verdoyant, tout en restant proche des commerces, écoles et transports, avec un accès rapide à l’autoroute A50 et au centre-ville.
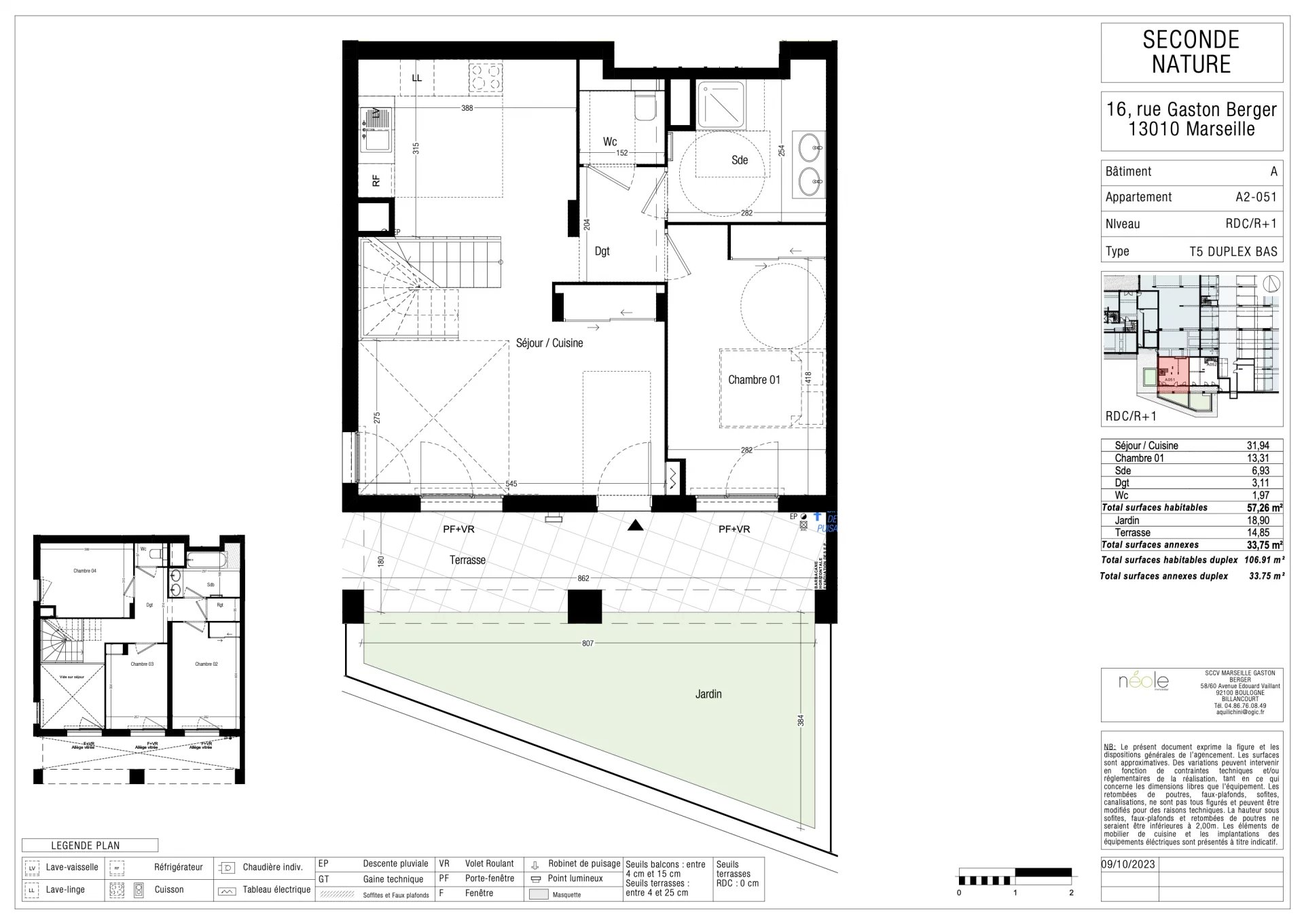
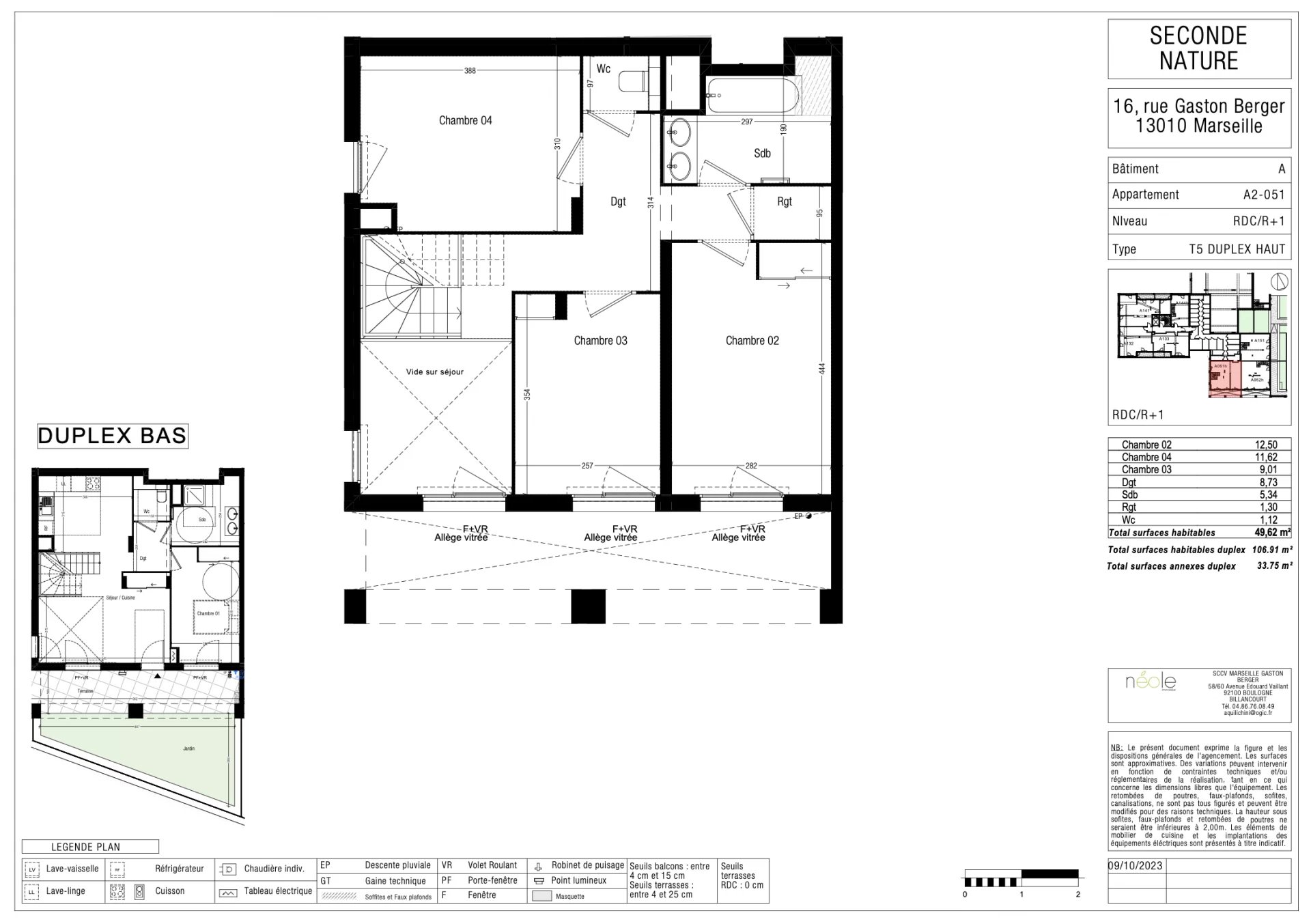
Avec une superficie habitable de plus de 106 m², ce logement familial s’étend sur deux niveaux et séduit par ses volumes et ses extérieurs généreux.
Au rez-de-chaussée, une entrée dessert un séjour/cuisine lumineux de 31,94 m², prolongé par une terrasse de 14,85 m² et un jardin privatif de 18,90 m², parfaits pour profiter des beaux jours. On y trouve également une première chambre de 13,31 m², une salle d’eau moderne et un WC indépendant.
À l’étage, l’espace nuit accueille trois chambres de 12,50 m², 11,62 m² et 9,01 m², ainsi qu’une salle de bains, un WC séparé et un rangement fonctionnel.
Côté prestations, la résidence propose un confort moderne avec chauffage individuel au gaz par chaudière à condensation, menuiseries PVC double vitrage, volets roulants motorisés, placards aménagés, WC suspendus et finitions soignées. Conforme à la norme RE 2020, elle garantit confort thermique et économies d’énergie.
Un bien rare à Marseille 10ᵉ, combinant espaces intérieurs généreux et multiples extérieurs privatifs, idéal pour une famille recherchant confort et modernité dans un cadre paisible.
Mme Manon CARRILLO
manon.carrillo@vincam-immobilier.fr
06 87 45 61 98








