A 10 minutes du centre ville d’Aix en Provence, à 7 minutes de la gare TGV et au sein d’un cadre verdoyant, venez découvrir cette superbe villa de 110 m² avec jardin de 158 m² livrée au 1er trimestre 2026.
La résidence haut de gamme et sécurisée offre un ensemble de 25 appartements et 14 villas au cœur d’un secteur privilégié, idéalement situé au nord ouest d’Aix en Provence et proche des écoles, commerces et hôpitaux.
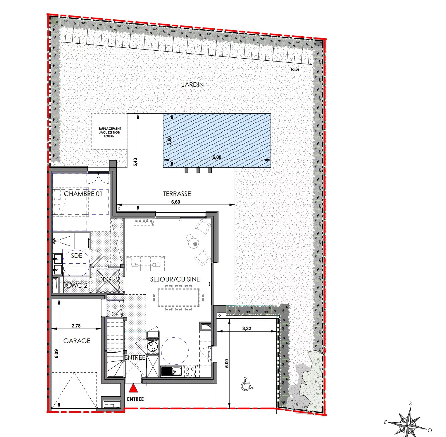
La maison se compose au rez de chaussée d’une entrée, un séjour lumineux avec cuisine ouverte, une chambre, une salle d’eau et un wc séparé.
A 1er étage, nous retrouvons 3 chambres, une salle de bains et des wc séparés.
Concernant les extérieurs, la maison bénéficie d’une terrasse de 27 m² exposée sud, d’une piscine et d’un jardin clos de 158 m².
Un garage et une place de parking extérieure complètent cette habitation parfaite pour une famille.
Les prestations intérieures sont très qualitatives avec le chauffage/eau chaude par pompe à chaleur air/eau gainé dans chaque pièce, un carrelage en grès 60*60 et de belles menuiseries en alu.
Pour plus d’informations, contactez le 06 26 92 67 08
Superbe villa neuve de 110 m² avec piscine et jardin
900000 €
0 Lits
110 m²
au sol
En détail
Infos
Maison
> jardin
> piscine
> fibre-optique
> piscine
> fibre-optique
Images




Demande de visite
Autres biens
a-vendre
490 000 €
2 CHAMBRES
1 Salles de bain
69.64 m²
a-vendre
671 000 €
3 CHAMBRES
1 Salles de bain
101.12 m²
a-vendre
138 000 €
1 CHAMBRES
1 Salles de bain
41.56 m²



