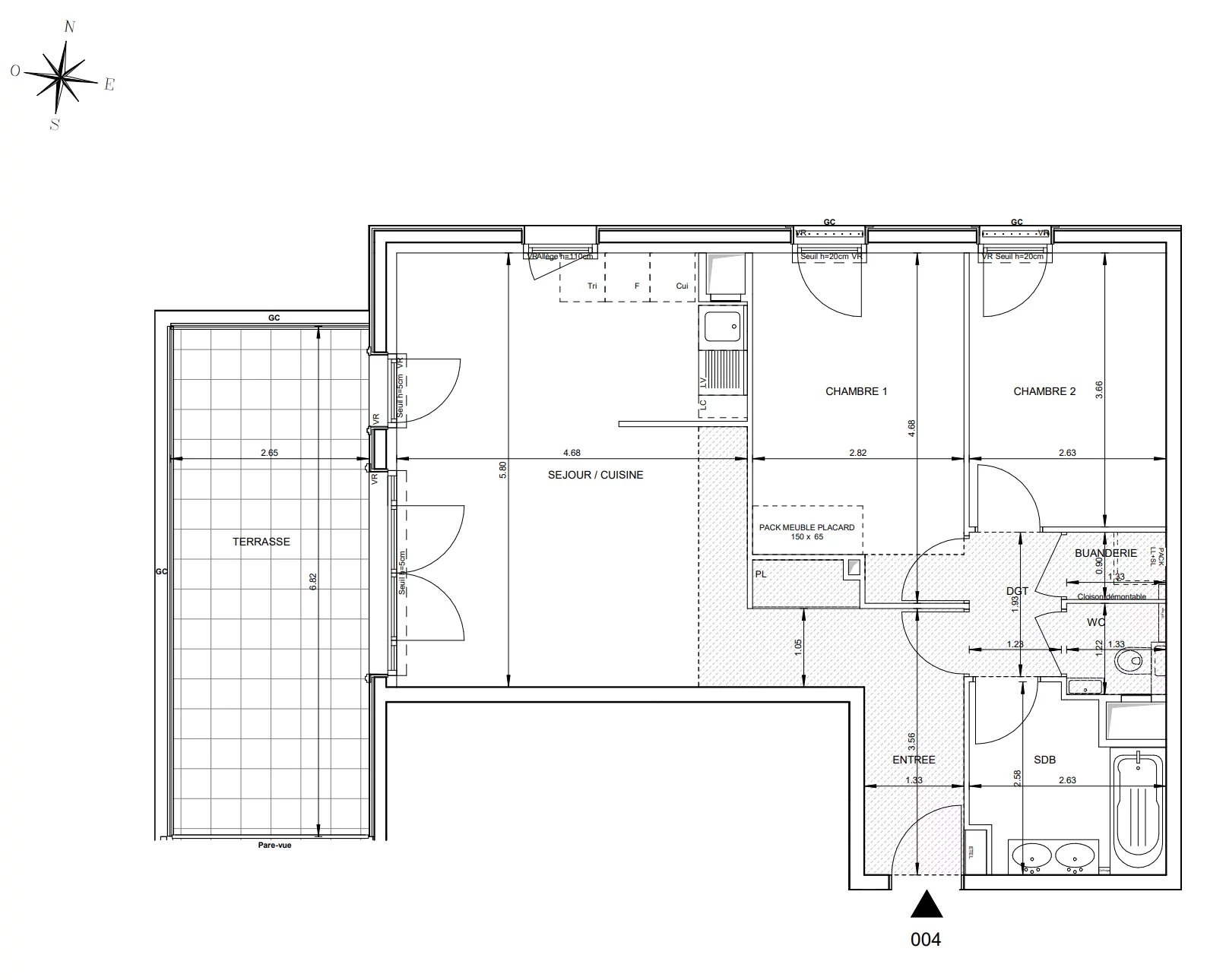
Avenue Fontenaille, à quelques minutes du centre ville, du lycée Paul Cézanne et de la gare routière, au sein d’une belle résidence de 28 logements sur 3 niveaux, venez découvrir ce superbe appartement en rez de jardin de 66,56 m² avec terrasse de 18,07 m² exposée Ouest.
L’appartement se compose d’une entrée, un séjour avec cuisine ouverte donnant sur la vaste terrasse, 2 chambres, une salle de Bains, une buanderie et un wc séparé.
Un box double en sous sol complète ce logement de standing aux prestations soignées.
Le chauffage et l’eau chaude sont individuels gaz et la résidence a reçu les agréments NF et RT 2012.
Le logement sera livré en septembre 2023 et vous pourrez bénéficier des frais de notaires réduits, du prêt à taux zéro et de la plus haute qualité de construction (logement peu énergivore et très bien isolé phoniquement)
Pour toute information, contactez le 06 26 92 67 08
Superbe T3 en rez de jardin avec terrasse de 18 m² et box double
495000 €
2 Lits
1 Salle de bain
66.56 m²
au sol
En détail
Infos
Appartement
> ascenseur
> digicode
> terrasse
> fibre-optique
> digicode
> terrasse
> fibre-optique
Images



Demande de visite
Autres biens
a-vendre
490 000 €
2 CHAMBRES
1 Salles de bain
69.64 m²
a-vendre
671 000 €
3 CHAMBRES
1 Salles de bain
101.12 m²
a-vendre
138 000 €
1 CHAMBRES
1 Salles de bain
41.56 m²



