Au cœur d’un secteur privilégié et résidentiel sans nuisances sonores ou visuelles, venez découvrir ce programme neuf de 20 maisons de type T4 et T5 situé à quelques minutes à pied du centre ville et des commerces.
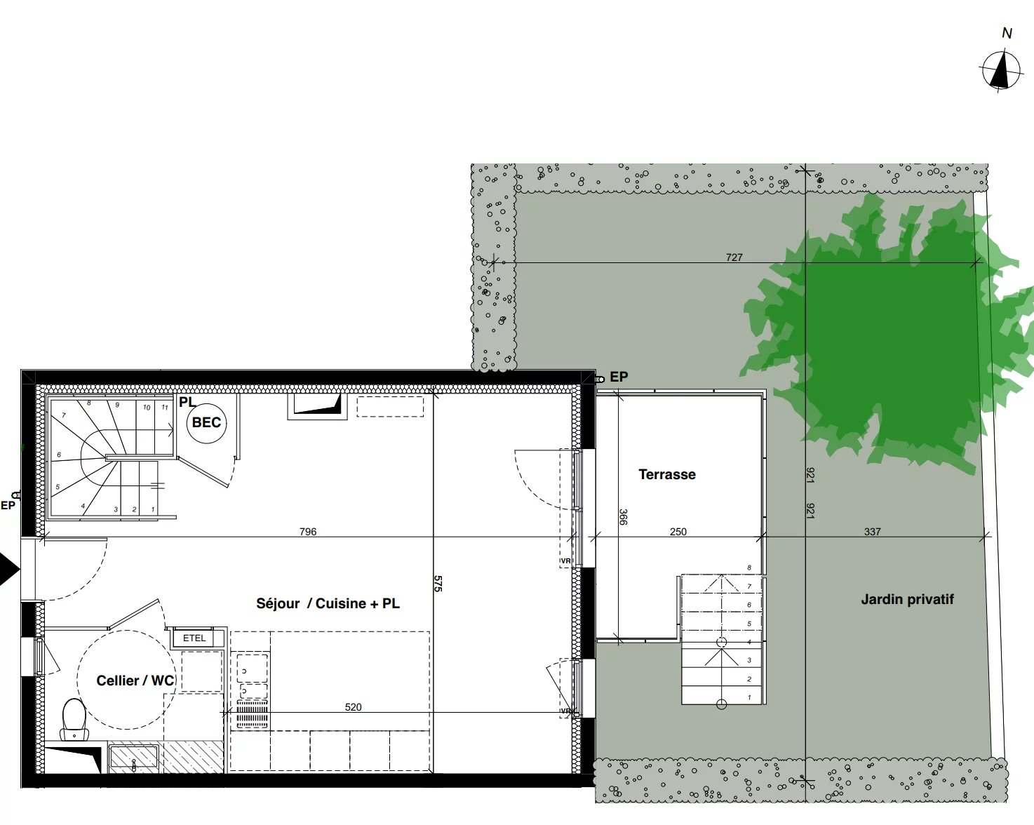
Je vous présente aujourd’hui cette belle maison T4 de 82,71 m² sur 2 niveaux composée au rez de chaussée d’une belle pièce à vivre avec cuisine ouverte de 35,47 m² donnant sur la terrasse et jardin exposé Est de 47,79 m², un cellier et un wc.
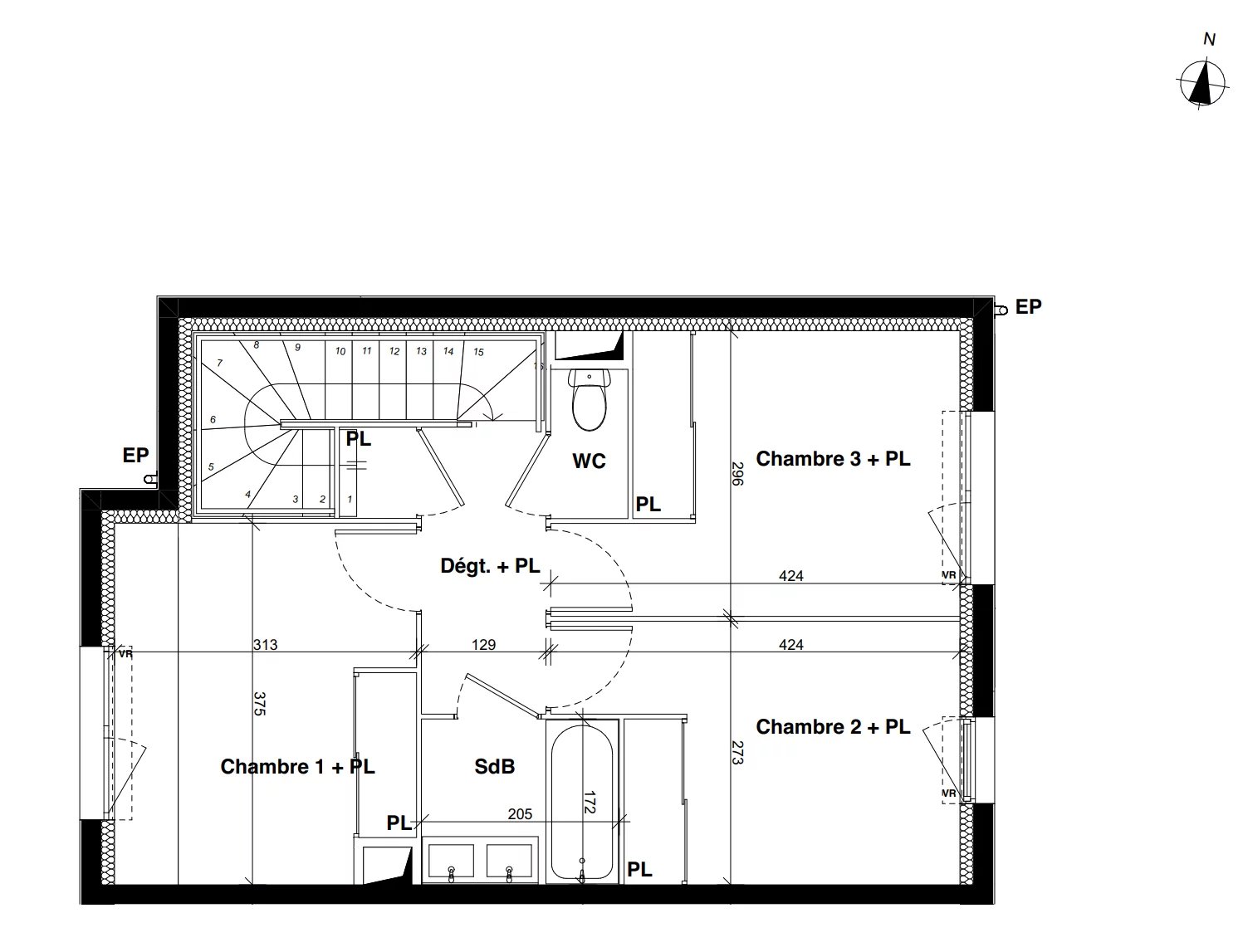
Au 1er étage, nous retrouvons 3 chambres avec placards, une salle de bains et des wc séparés.
Le chauffage diffusé est par pompe à chaleur (clim) au rez de chaussée et par convecteurs radiants au 1er étage. Les prestations sont de qualité et répondent aux normes de construction RE 2020 offrant de réels gains énergétiques et un grand confort acoustique.
La résidence est fermée et sécurisée et se situe en fin d’impasse.
Les frais de notaire sont offerts pour le mois de juillet et ce programme sera livré au dernier trimestre 2026!
Pour plus d’informations ou un rendez vous sur le terrain, contactez le 06 26 92 67 08.
maison neuve T4 au cœur d'un secteur privilégié de Barbentane
359000 €
0 Lits
82.71 m²
au sol
En détail
Infos
Maison
> digicode
> jardin
> terrasse
> jardin
> terrasse
Images







Demande de visite
Autres biens
a-vendre
490 000 €
2 CHAMBRES
1 Salles de bain
69.64 m²
a-vendre
671 000 €
3 CHAMBRES
1 Salles de bain
101.12 m²
a-vendre
138 000 €
1 CHAMBRES
1 Salles de bain
41.56 m²



