Au sein d’un environnement privilégié, en bordure d’une zone naturelle boisée, venez découvrir cette résidence de standing offrant 6 maisons individuelles à quelques minutes du centre ville et des plages.
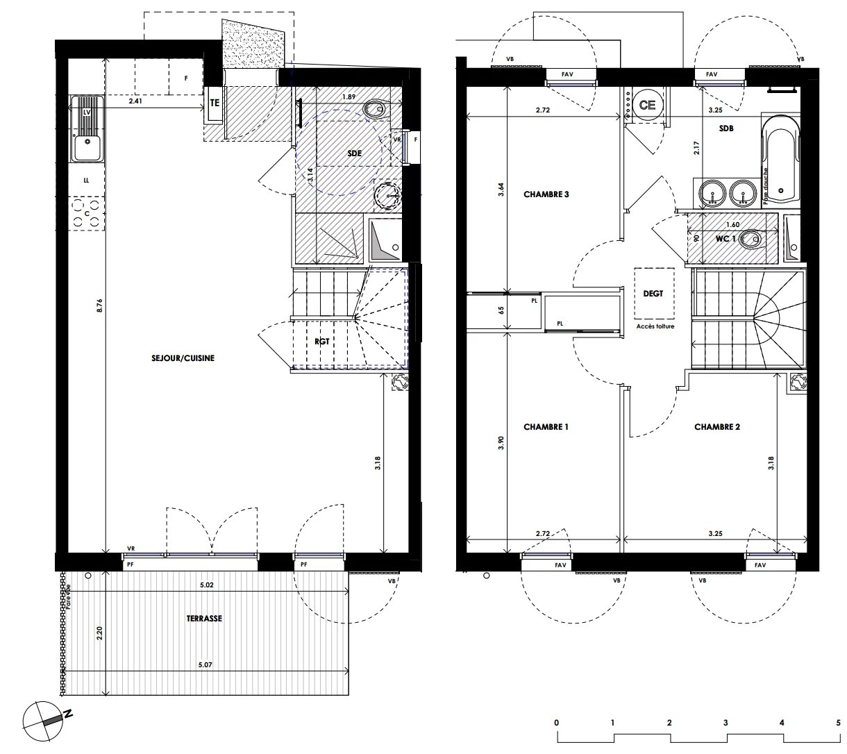
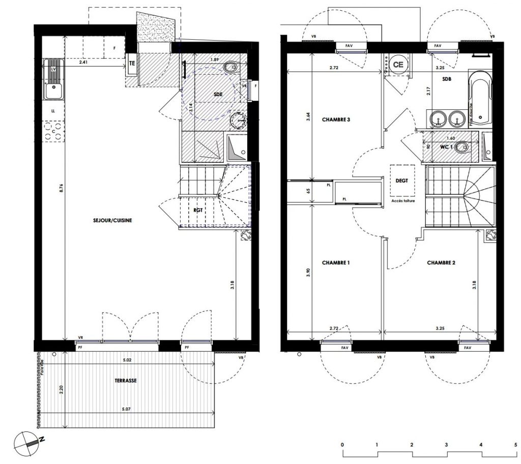
Le bien présenté ici est une maison T4 de 90 m² avec terrasse de 11,2 m² et jardin privatif de 65 m².
Elle se compose au rez de chaussée d’un séjour avec cuisine ouverte de 40,3 m² ouvrant sur la terrasse et le jardin exposé Sud/Est, une salle de douches avec wc et un rangement sous escaliers.
Au 1er étage, nous retrouvons 3 chambres, une salle de bains et des wc séparés.
2 places de parking en sous sol, accessibles avec ascenseur, complètent ce logement idéal pour une résidence principale ou secondaire.
Les prestations sont soignées avec des peintures lisses, du carrelage en grès émaillé 60*60, des volets roulants électriques et des fenêtres double vitrage en PVC gris.
Ce programme sera livré en avril 2024 et vous pourrez bénéficier des frais de notaires réduits, du prêt à taux zéro et de tous les avantages d’un achat de logement neuf (très peu énergivore et très bien isolé phoniquement).
Pour plus d’informations ou un rendez vous sur le terrain, contactez Mme VINCENT au 06 26 92 67 08
Maison avec jardin au sein d'une résidence neuve à 10 minutes des plages
605000 €
3 Lits
1 Salle de bain
90.1 m²
au sol
En détail
Infos
Maison
> ascenseur
> digicode
> jardin
> terrasse
> fibre-optique
> digicode
> jardin
> terrasse
> fibre-optique
Images





Demande de visite
Autres biens
a-vendre
490 000 €
2 CHAMBRES
1 Salles de bain
69.64 m²
a-vendre
671 000 €
3 CHAMBRES
1 Salles de bain
101.12 m²
a-vendre
138 000 €
1 CHAMBRES
1 Salles de bain
41.56 m²



