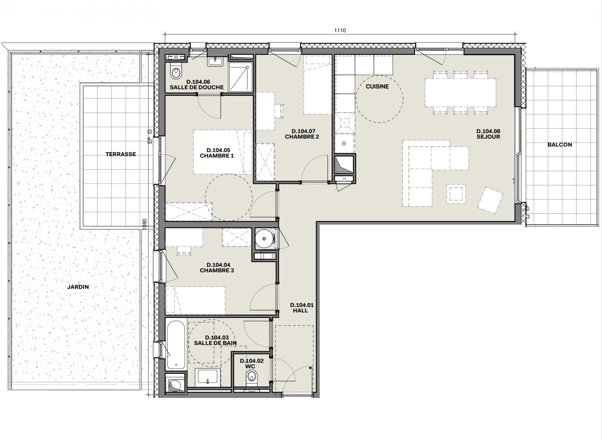
Au sein d’une résidence livrée en avril 2023 sur la nouvelle zone d’habitation de Beaulieu, venez découvrir ce superbe appartement traversant de 80 m² au 1er étage avec ascenseur offrant 2 terrasses de 10 et 11 m² et un jardin de 40 m².
Le bien se compose d’un hall d’entrée, un beau séjour avec cuisine ouverte aménagée ouvrant la terrasse ensoleillée, une suite parentale avec salle d’eau, 2 chambres lumineuses, une jolie salle de bains et un wc indépendant.
2 parkings en sous sol et une cave complète le logement.
Faibles charges de copropriété, ascenseur et immeuble couvert par la garantie décennale pendant 10 ans.
Vous pourrez bénéficier des frais de notaire à 2,5 % et de tous les avantages d’un achat « neuf » (prêt à taux zéro, défiscalisation pinel,…) avec ce bien visitable et disponible en avril.
A voir rapidement !
Pour plus d’informations, contactez Mme Vincent au 06 26 92 67 08
Bel appartement T4 avec 2 terrasses et jardin
266000 €
3 Lits
1 Salle de bain
80.1 m²
2/4 au sol
En détail
Infos
Appartement
> ascenseur
> digicode
> jardin
> terrasse
> fibre-optique
> digicode
> jardin
> terrasse
> fibre-optique
Images




Demande de visite
Autres biens
a-vendre
490 000 €
2 CHAMBRES
1 Salles de bain
69.64 m²
a-vendre
671 000 €
3 CHAMBRES
1 Salles de bain
101.12 m²
a-vendre
138 000 €
1 CHAMBRES
1 Salles de bain
41.56 m²



