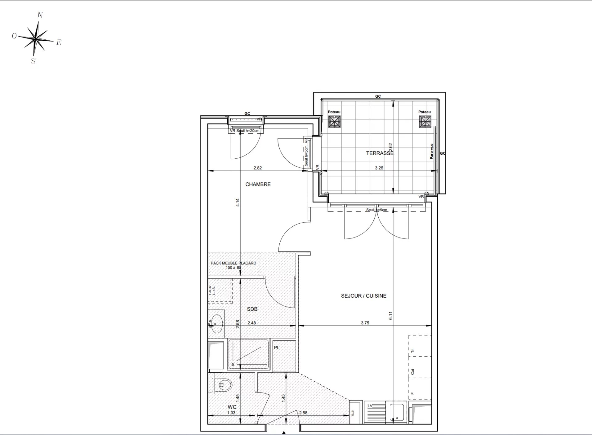
Avenue Fontenaille, à quelques minutes du centre ville, du lycée Paul Cézanne et de la gare routière, au sein d’une belle résidence de 28 logements sur 3 niveaux, venez découvrir ce superbe appartement de 42,67 m² en rez de chaussée avec terrasse privative de 8,36 m².
L’appartement se compose d’un séjour avec cuisine ouverte donnant sur la terrasse, une chambre, une salle de douches et un wc séparé.
Un parking privatif en sous sol complète ce logement aux prestations soignées idéal pour un 1er achat ou un investissement locatif.
Le chauffage et l’eau chaude sont individuels gaz et la résidence a reçu les agréments NF et RT 2012.
Le logement sera livré en septembre 2023 et vous pourrez bénéficier des frais de notaires réduits, du prêt à taux zéro et de la plus haute qualité de construction (logement peu énergivore et très bien isolé phoniquement)
Pour toute information, contactez le 06 26 92 67 08
Beau T2 avec terrasse et box quartier Fontenaille
315000 €
0 Lits
42.78 m²
au sol
En détail
Infos
Appartement
> ascenseur
> digicode
> fibre-optique
> digicode
> fibre-optique
Images


Demande de visite
Autres biens
a-vendre
138 000 €
1 CHAMBRES
1 Salles de bain
41.56 m²
a-vendre
136 436 €
1 CHAMBRES
1 Salles de bain
37.52 m²
a-vendre
272 872 €
3 CHAMBRES
1 Salles de bain
81.43 m²



